Our Greenest Building? Made in Europe

Our Greenest Building? Made in Europe

01 March 2017
Case Study

The following article appeared in our Winter 2017 Environment Group Newsletter.

The Christies Care building offered an opportunity to concentrate on the aspects of greenness that perhaps have the largest effect, without the need to tick boxes. It is essentially a pre-fabricated building, and it has been interesting to note how many of its major components have been imported from Europe.

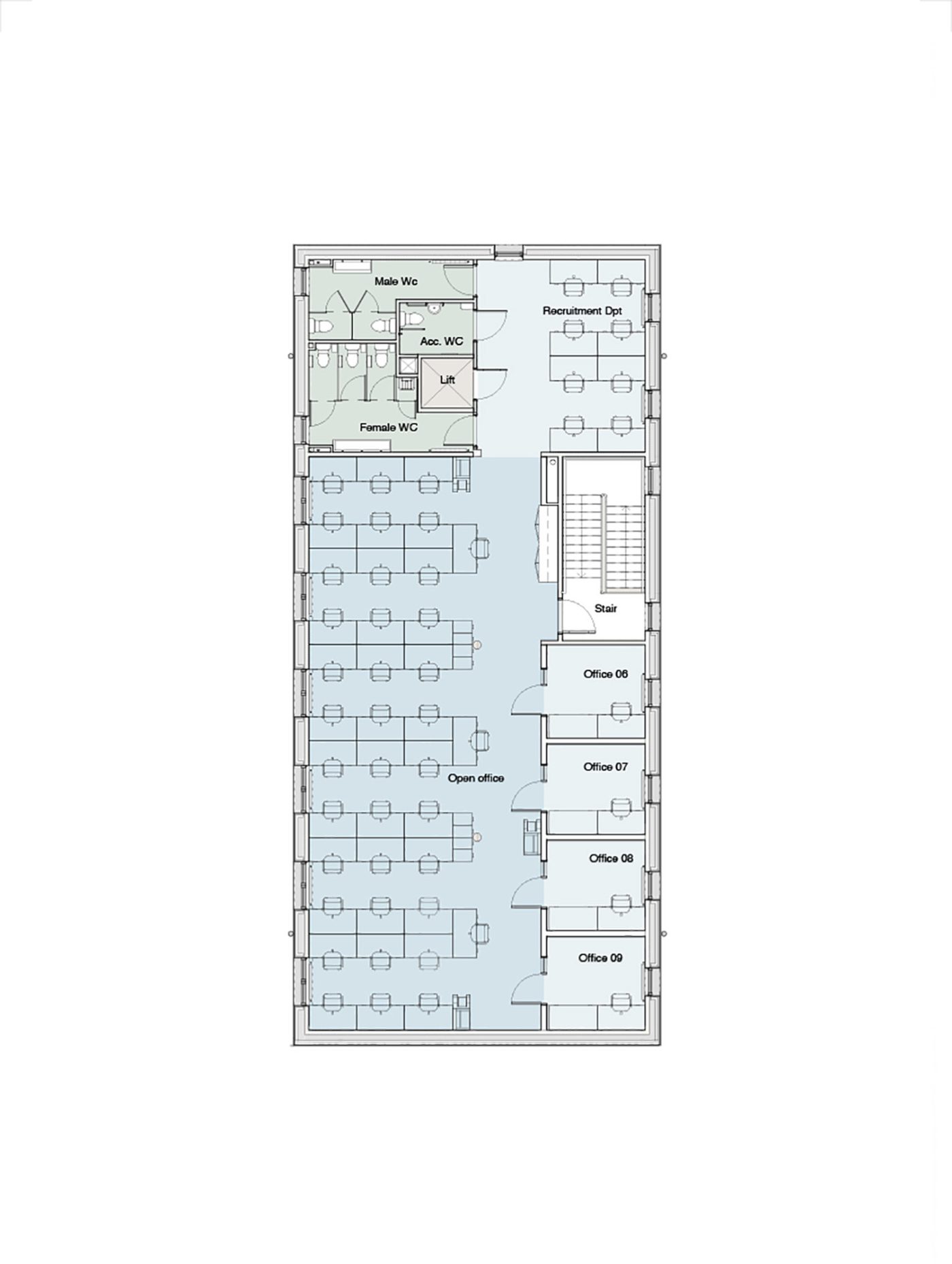
Christies Care arranges home care for all sorts of people. The brief was for a new office building to house about 60 people, next to their existing buildings on the edge of Saxmundham in Suffolk. The client is an old friend, keen to be environmentally responsible, keen on economy in capital and running costs, and not really concerned with measures such as BREEAM, nor with excessive refinement.

We took the decision to focus on two aspects of greenness: in the selection of materials and energy economy, targeting an EPC ‘A’ rating, and following Passivhaus principles without the rigour and expense of certification. We chose a design team who would be able to contrib­ute to that approach: Tim Mander of IED for his knowledge of structural materials with low embodied energy; CPW as environmental engineers with good experience of Passivhaus design; and the Bremner Partnership as QS also because of their experience with Passivhaus.

NEXT

British Council for Offices talk and tour

Design approach

The client’s existing buildings surround a level tarmac area, which is on the edge of the flood risk zone of the river Fromus.

The client’s expectation was that the new building would occupy this space, though it was criss-crossed with underground services. However, he had also bought an adjoining strip of field, which rose from the valley on its east side. Part of this was used for car parking, with plastic reinforcement of the grass. Planning permission had just been given for a large housing development beyond this, expanding Saxmundham eastwards. Our most important design contribution was to persuade the client that the new building should be sited on the car park land.

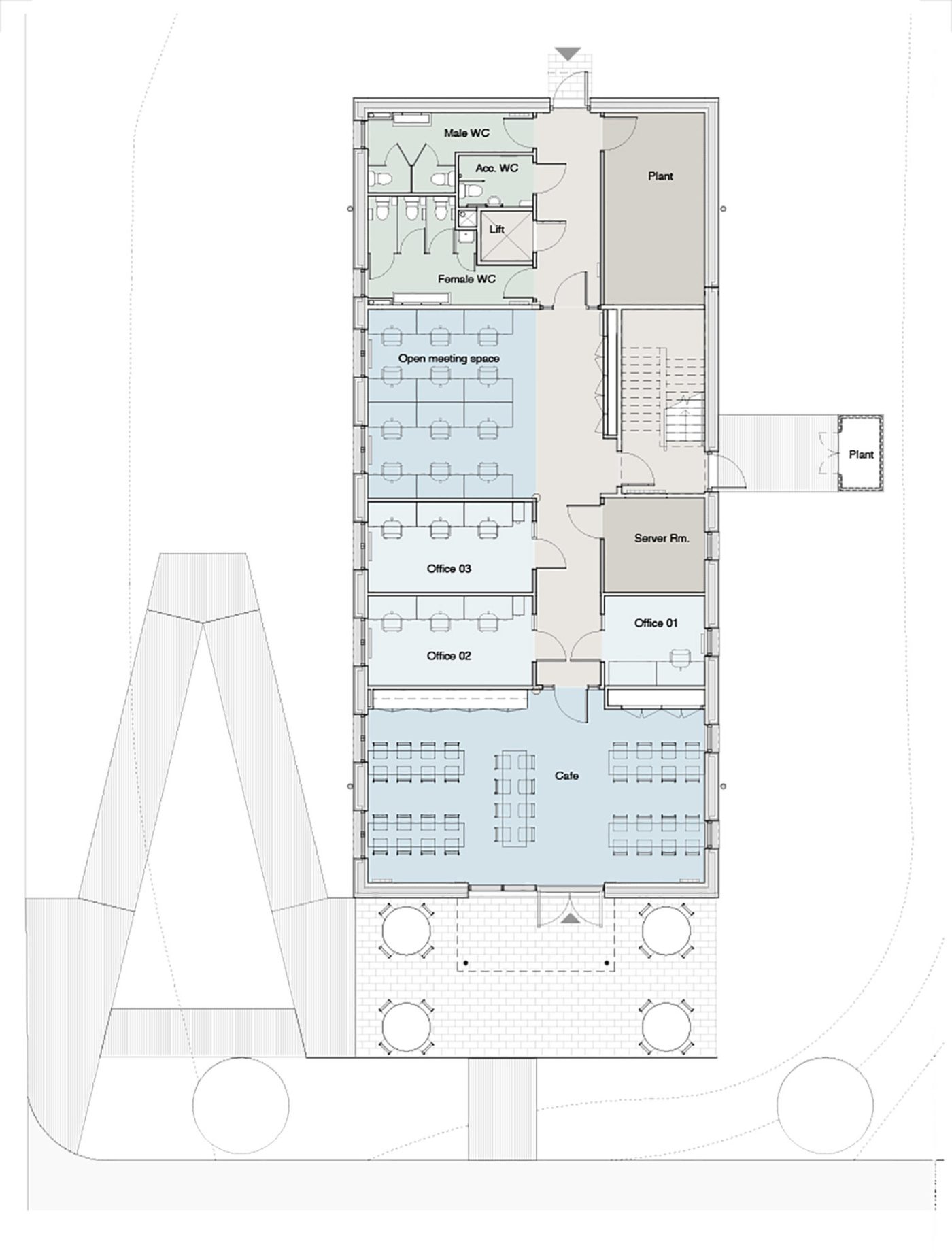
It was quickly agreed that the form of the building would be simple, to limit the area of the external envelope and so minimise its cost and heat loss through it: the proposal was for a two-storey box with a pitched roof to echo that of the nearby decrepit timber-clad barn, about to be demolished to make way for the housing. Initially, the proposal was for the building to stand on the slope overlooking the central open area, with its café on the west side giving onto a terrace and a few steps (the entrance to the building is through the café – the site reception is elsewhere). The car parking was then confined behind the building, on its north side under the slope of the railway embankment (it’s quite a quiet line). However, the neighbour on the south – and the planner – thought it was too close to his bungalow, so it was moved northwards, with the parking on the south side, and so café/entrance was also moved to the southern end of the building.

Construction

The entire superstructure of the building, including its external walls, is of cross-laminated timber (CLT). The first floor spans between glulam beams of 6m centres, supported on central glulam columns. The roof planks span from eaves to apex, with a glulam ridge beam supported on slender glulam columns (the arrangement eliminates the need for horizontal ties).

Although pre-fabricated in Austria and therefore needing transport, the seques­tered carbon in the timber of CLT far outweighs that disadvantage (the balance in carbon reduction is generally considered to be about 55% compared with a concrete structure) The project sequestered 180 tonnes of carbon. This form of construction meant that the superstructure was erected in three weeks. It will also be easy to demolish and recycle when the time comes. The CLT is generally visible internally and is sealed to achieve class O spread-of-flame reduction. The subcontractors were Eurban and they offer three quality grades for interiors. The most basic industrial quality was chosen, in the hope that its flaws would not seriously detract from the overall effect. The surface was given a dilute white spray, to reduce the effect of the timber darken­ing over time.

The insitu ground-bearing slab sits on Jabfloor 100 insulation on sand and hard core. The idea as with Passivhaus design was that the whole enclosing structure of the building would be wrapped in insulation, and so special Marmox insulating blocks were used to provide insulation between load-bearing walls and the strip foundations. Generally this has been successful. However, Eurban’s engineers modified the original structural design to the end gables (they resist lateral wind load), requiring vertical panels be considered as acting individually, greatly increasing the local upwards forces. This resulted in the need for special holding-down brackets and tying the slab to the foundations, therefore compro­mising the insulation locally.

Orientation

Because of the shape and slope of the site, the long axis of the building runs north-south, so that the windows along its side walls face east and west. The building is 24m long, divided into 6m bays, and 11m wide. The windows are therefore at 3m centres, corresponding to the spacing of desks. The deeper and more open offices are on the west side, so the windows are larger there than on the east. All of them have blinds to cope with sunlight. Following Passivhaus principles, the wet parts are at the north end, and the only openings on that side are to the central circulation space. On the south, there is a generous glazed screen to the café, with a deep canopy to protect it from summer sun, but allow some solar gain in winter. Above it, at high level in the gable is a circular window. This will allow sunshine to track across the open office on the first floor, and can be opened by actuator to help purge hot air in summer.

External materials

The external wall cladding is of vertical Accoya tongued-and-grooved strips. Accoya is acetylated timber. The patented treatment is carried out in Holland.

Its effect is to change the cell structure of the wood: instead of being open to absorb and give up moisture, leading to move­ment and then disintegration, the cells are closed and so movement is very much reduced. This means that the manufactur­ers can offer a 50-year guarantee of its integrity, whether it is painted or not. Our original intention was that it should be pre-painted, but the client opted for it to be unpainted, understanding that it will go grey and stain unevenly, since the façades are not designed for uniform exposure of the timber cladding. The timber used in

Accoya is radial pine, largely grown in New Zealand, so transported by sea. However, it is a timber too poor for normal use without the Accoya treatment, so the net effect is to make good use of an otherwise unused resource, again using a material with high levels of sequestered carbon. The planks are generally secret fixed to battens and counter battens, themselves fixed through the 200mm PIR Celotex XR4000 insulation to the CLT inner leaf.

The roof cladding is of pre-patinated zinc, site fixed with folded welts, onto plywood on insulation. The rainwater goods are also of zinc, all supplied from France by VM Zinc. The windows are Velfac (the only UK supplier among those men­tioned so far), so have timber frames with ppc aluminium externally.

Insulation and air-tightness

The calculated U–values were as follows:

0.1 W/m²K - External walls
4 W/m²K - Windows (double-glazed not triple)
0.1 W/m²K - Roof
0.15 W/m²K - Ground floor

CPW’s calculations showed that with air leakage of 3m³/hr/m² at 50Pa an EPC ‘A’ rating was comfortably attained, and with 5m³/hr/m² at 50Pa it was marginal. At the first testing a value of 1m³/hr/m² at 50Pa was achieved (Passivhaus requires .75 but we did not retest to achieve that).

The result was testimony to the form of construction and a careful contractor. CPW’s re-calculation incorporating that value shows that after some work, an EPC ‘A’ rating was only just achieved, with a CO2 emission rate of 16.9 kgCO2/m² annum. The reasons for this were apparently some changes in the method of calculation, and the inclusion of Zip taps for making hot drinks in the open kitchenettes.

Ventilation and heating

It was agreed at the outset that the primary ventilation system would be mechanical with heat recovery, as with Passivhaus. We decided on a centralised system, with the Passivhaus approved air handling

plant (by Swegon) requiring a rather large plant room on the ground floor in the north-east corner of the building. The supply air ductwork runs within the depth of the raised first floor. The medium duty raised floor has a depth of 450mm. In addition to providing space for the distribution of M&E services, it helps to overcome the main weakness of CLT suspended floors, which is in transmitting impact and airborne sound. Most of the people in the building will be on the first floor. For them, the raised floor is divided into plenum zones and the air is delivered at low velocity through floor grilles in a displacement ventilation system. The warming air ascends slowly and is extracted at high level, to return to the heat-exchanger.

The most populous areas of the ground floor will be the café and the small open office. For these, the air is supplied at high level. The overall system is similar to that in the Farnborough University Centre. It avoids the cost and complication of a raised ground floor. The individual ground floor offices have trickle vents for winter use, with transfer grilles to the negative pressure outside them, to encourage some air move­ment. All of the windows are opening for spring, autumn and summer use.

One of the advantages of a building designed to reduce heat loss is that heating elements may not be needed, and Passivhaus standards do not include them. However, CPW reported that non-residential Passivhaus buildings that they had worked on, there was a 30% complaint rate because of the absence of heating elements, and they recommended that they should be included. The building therefore has a conventional low pressure hot water system, though the radiators are quite small and will probably only be used for warm-up on cold mornings.

Other measures

Other measures were considered and rejected, mainly because of their dispro­portionate cost, given the scale of the building. They included rainwater and grey water collection, direct solar water heating (the hot water use will be low), ground or air-source heat pumps (little heating will be needed) and local electricity generation. The last could easily be added, but it was con­sidered unnecessary, given that the building meets its Part L requirements and the EPC ‘A’ rating (all of the lighting uses LEDs).

Education and feedback

As well as technical briefing, handover sessions are planned to explain to the build­ing’s occupants how it is supposed to work. The metering has been arranged so that it should be possible to monitor and tune the building’s performance over time.

Related