Alexandra Theatre
Bognor Regis
The Alexandra Theatre, located within The Regis Centre, is a small-scale community theatre situated on the Bognor Regis seafront. The building originally opened in 1980, but it has not aged well resulting in ongoing maintenance challenges, and some of the building’s facilities and layout are no longer fit for purpose. Arun District Council have secured Levelling Up grant funding for a significant overhaul of the building.
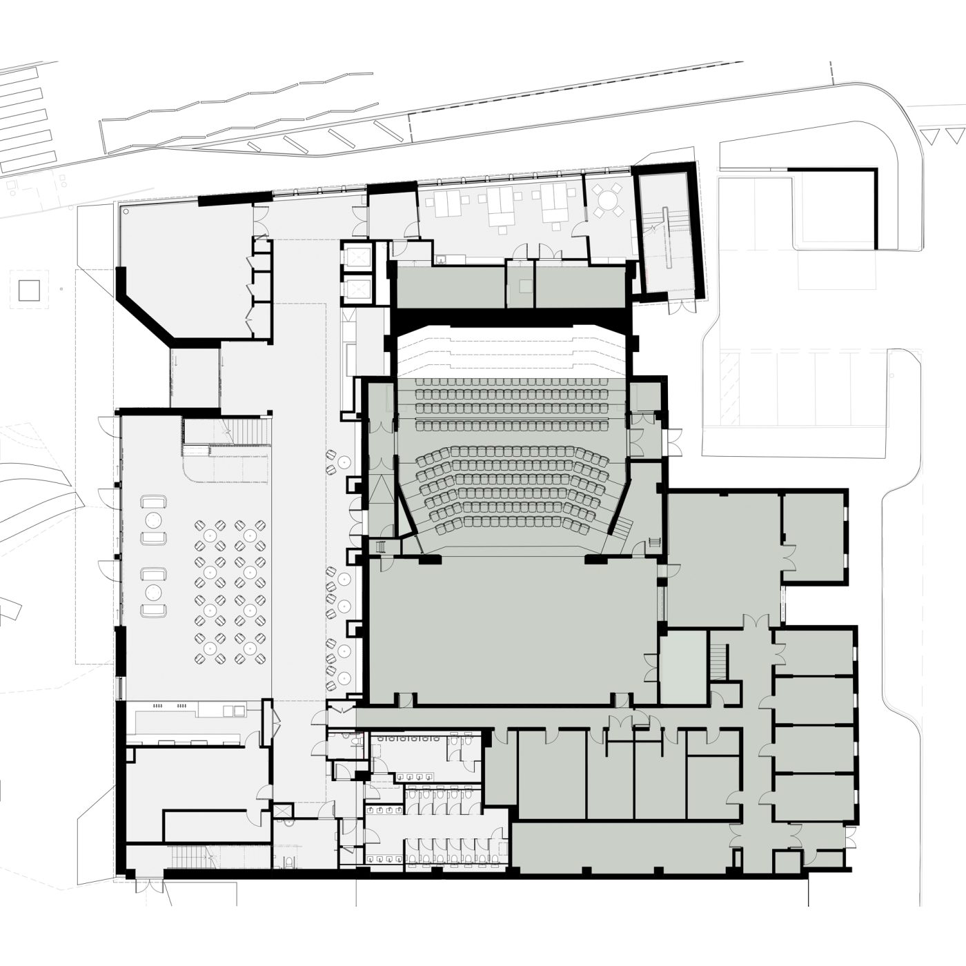
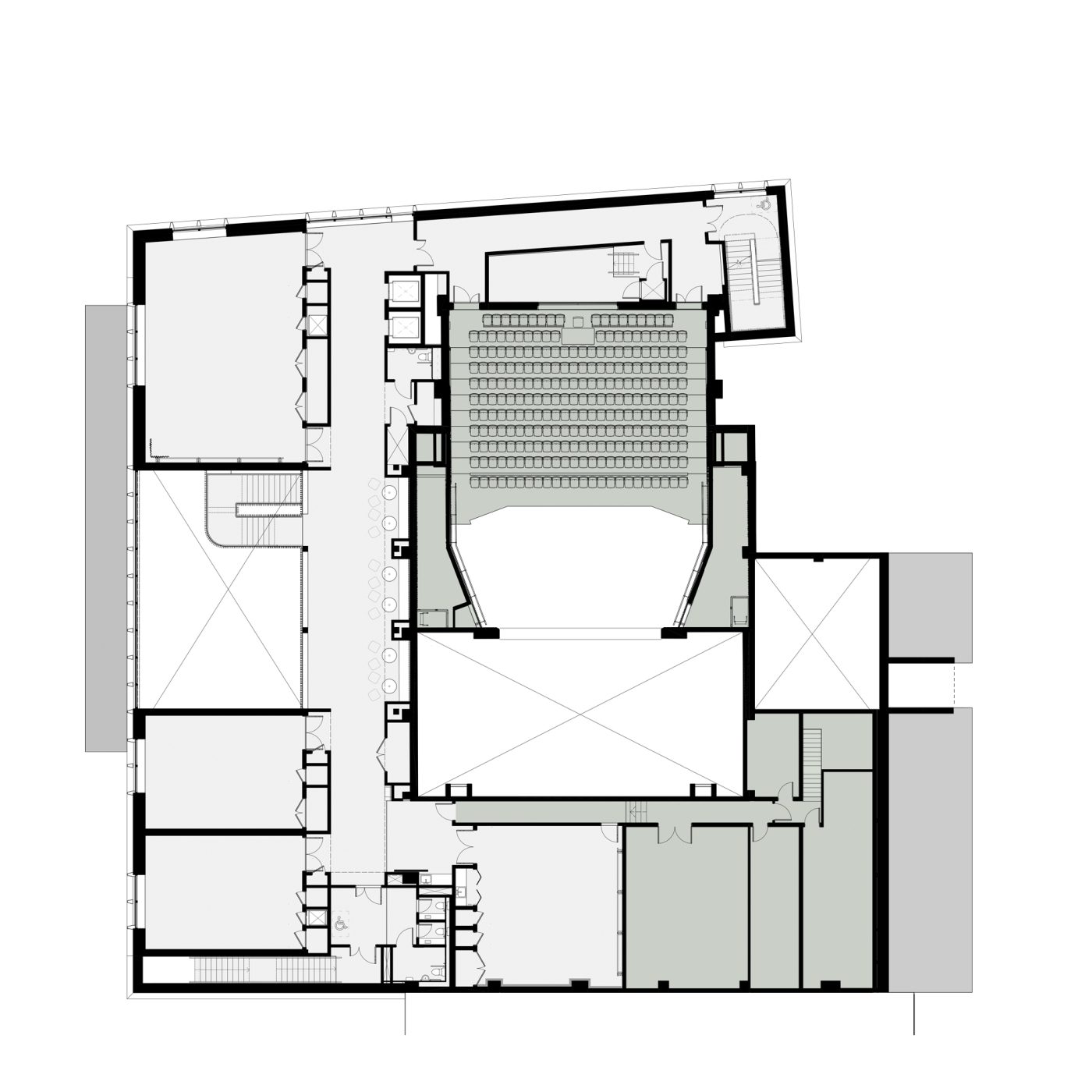
A redevelopment strategy has been developed that proposes upgrades to the auditorium and new front of house facilities, in addition to increased studio and exhibition space that will help ensure the theatre’s position as the welcoming cultural heart of Bognor Regis for years to come.
The proposed works involve the demolition of the existing front of house areas to provide space for an extension providing a new public foyer and café/bar, new studios, office space and WC facilities. The auditorium will be refurbished to increase seating capacity, and improve accessibility and sightlines. The existing problematic roof covering will be replaced with a robust standing-seam zinc.
The façade materials have been influenced by the local architectural context and the seafront context, with a palette that echoes the tones of the adjacent pebble beach. The design employs pale textured brickwork, light bronze anodised aluminium cladding and window framing, and white re-constituted stone elements that divide the façade into three layers: ground floor, first floor, and taller elements within a parapet zone locating the first-floor studio spaces. The foyer is expressed with larger areas of double height glazing to the west and north. Glazed areas are externally shaded using vertical re-constituted stone fins that establish a vertical rhythm within the primary first floor layer.
Internal materials are largely self-finished to reduce applied finishes and reduce embodied carbon. Within the foyer the structure is exposed providing warmth in the form of exposed timber, and thermal mass in the form of insitu concrete. Windows and curtain walling have timber internal framing to complement the timber structure. The studio spaces are designed as box-within-box acoustic enclosures with internal acoustic paneling and hardwood sprung floors. Further timber and woodwool paneling provide acoustic absorption within the foyer, and the auditorium is re-lined internally with hardwood acoustic slats. Terrazzo and ceramic tiling complete the high-quality palette of materials to the foyer café space, with carpet tiling to circulation areas to enhance acoustic comfort.
The project has been designed with a highly insulated envelope, including the renewed auditorium roof, to greatly enhance the energy efficiency of the building. The foyer and studio spaces are naturally ventilated using attenuated wind catchers on the roof and automated opening windows within the foyer. In the studios high level windows can be opened with local controls to provide purge ventilation.
Our Team
- James Eades
- David Tompson
- Mariela Martinez Oncina
- Beatriz Cantal Castro
- Andrew Hays
- Katie Burgess
- Gareth Taylor
Project Team
- Client Team: Arun District Council
- : Arun Arts
- : Plann
- Project Manager: Mace
- Architect: Nicholas Hare Architects
- Services Engineers: KJ Tait
- Structural Engineers: SFK Consulting
- Acoustic Consultant: Theatre Projects
- Theatre Consultant: Theatre Plan
- Fire Engineer: OFR Consultants
- Planning Consultant: Alder King
- Community Engagement: DevComms