Brighton College Performing Arts Centre
Brighton College
In the last decade Brighton College has invested in its 19th century campus with a series of award winning buildings.
The competition won by krft architects - a young architecture studio based in Amsterdam - called for a 3000sqm mixed-use education building to house the College's performing arts activities with a 400 seat theatre at the heart of the building and new sixth spaces.
KRFT developed amazing design proposals for the College and led the design through to the end of stage 3 (with NHA collaborating and providing technical support). NHA have been leading the project from stage 4 onwards. Planning consent was granted in December 2021.
Images courtesy of © krft architects and © Forbes Massie
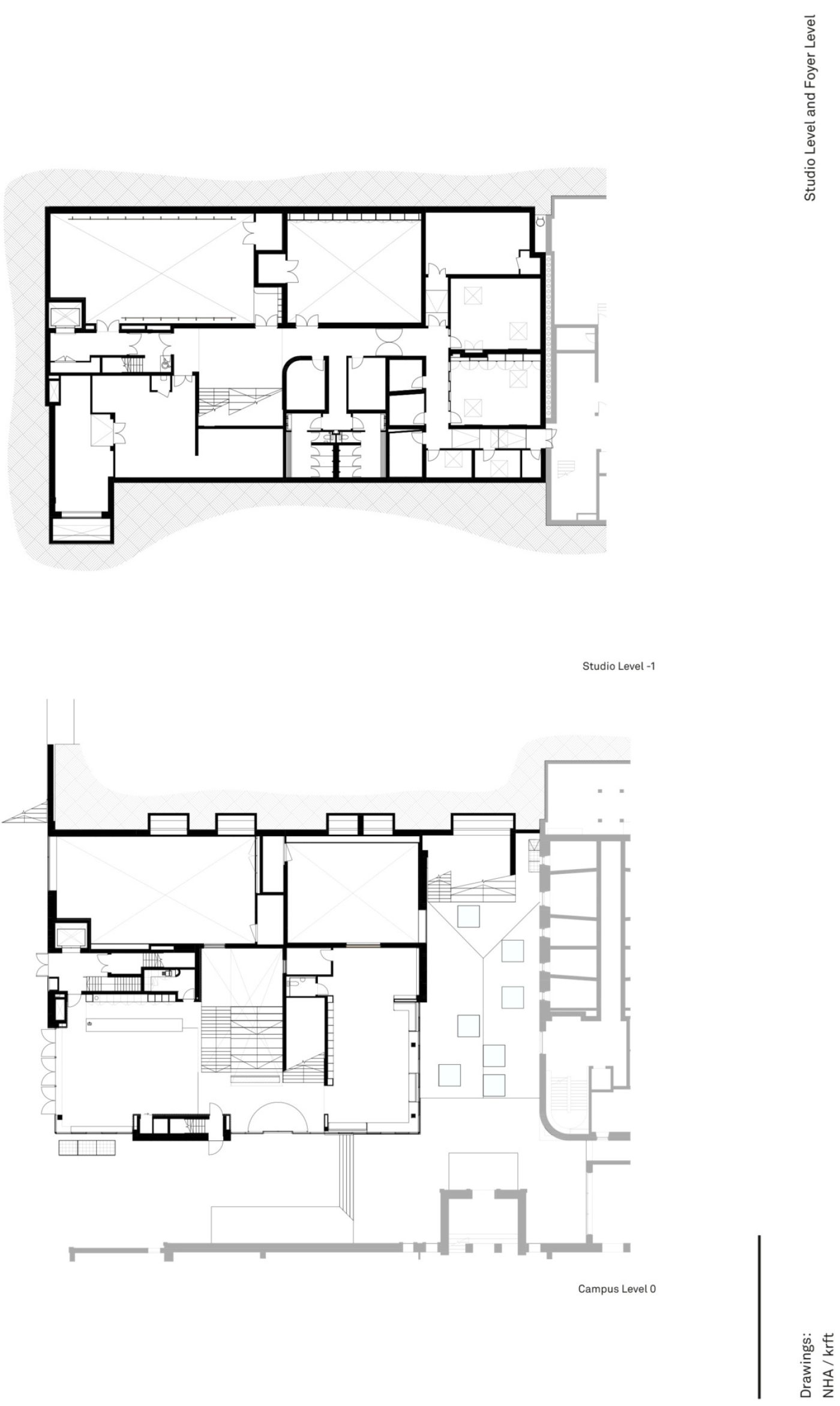
The competition winning design placed the theatre hall floating above above a multi-oriented foyer space, making connections to all outdoor spaces surrounding the site. Thus emphasizing the building as a pivot point for movement around the campus. The studio spaces, positioned at basement level, use their double height to capture daylight and views through large windows from the ground floor.
The new building, located between the listed Sir Gilbert Scott designed Main Building and the Home Ground playing fields will provide a new quadrangle between the new building and the Eric Parry designed music building (connecting with it at basement level.
In its architecture, the building attempts to bridge the monumental with the contemporary, both in form and in material. The building rises up as a white chalk cliff from the green campus space. The facade, mixing contemporary light brickwork with darker traditional flint bridges the different characters of the surrounding campus.
Our Team
- James Taylor
- Andrew Hays
- Simon Salvador Garcia
- Philip Springall
- Gareth Taylor
- Emily Cheung
- Brooklyn Byrne
Project Team
- Client: Brighton College
- Architects: KRFT
- Services Consultants: Skelly & Couch
- Structural Engineers: Momentum
- Planning Consultant: Lichfields
- Fire Consultant: The Fire Surgery
- Landscape Architect: Bradley-Hole Schoenaich
- BREEAM assessor: Eight Associates
- Approved Inspector: AIS