Unity Campus Phase 3 - Outline Planning Design
South Cambridgeshire
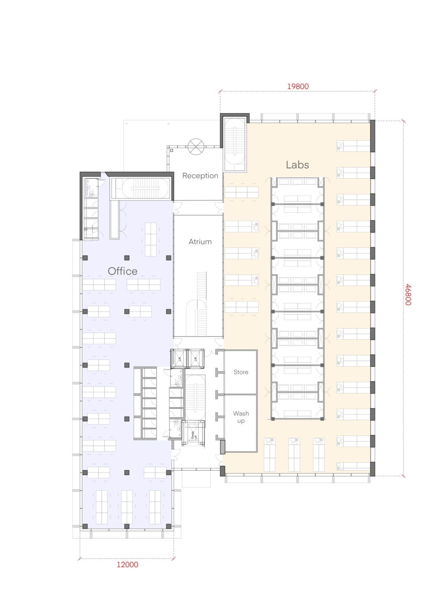
The third phase at Unity Campus will complete NHA's 2018 masterplan. Following the success of phase two, Howard Group engaged NHA to develop proposals for 58,000 sq ft of CL2 laboratories and a café pavilion at the heart of a completed landscaped square.
The proposal places the
accommodation in two distinct wings with a central atrium facing the square.
Occupants can easily navigate around laboratories which benefit from
overlooking this uplifting garden space, acting as shared circulation at the heart of the
building.
The wings provide the landlord flexibility to accommodate up to 6 tenants within the building. Laboratories are placed to the rear, where the main core provides goods lifts and servicing.
Offices are placed to the front overlooking the central square and enjoying views into the garden atrium.
The central square at the heart of the campus will be transformational for all working and visiting Unity Campus. This will provide a variety of urban garden spaces, ranging from shaded and enclosed outside meeting places, to lawns and wildflower meadows bustling with life. Within this setting, a pavilion formed of exposed timber frame with fully glazed walls will be placed. This will provide bookable meeting spaces, FM offices and a publicly accessible café.
To address the enhanced vehicular servicing requirement, a goods in/out yard has been included that can accommodate lorry parking from the London Road entrance.
The NHA strategy continues the innovative approach now established at Unity Campus. The third phase will deliver exceptional embodied and operational carbon performance.
Our Team
- John Leonard
- Chris Mannings
- Oana Gavris
- Maria Kaik
- Simon Salvador Garcia
Project Team
- Client: Howard Group